Suvila Eric T B95


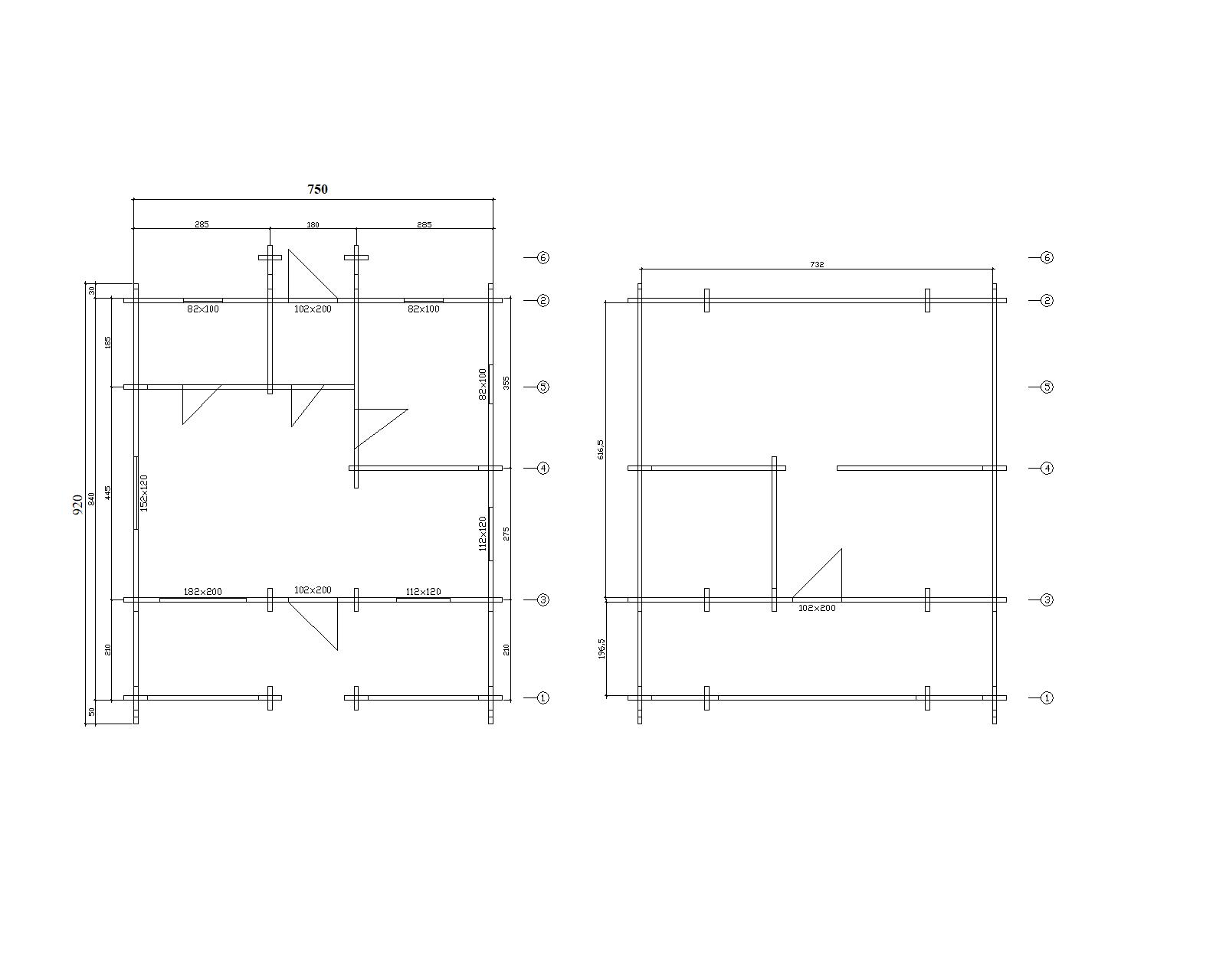
Saun-suvila 38 m2, mille valmistasime Lõuna-Soome ,ühele perele. Aluseks oli üks Kalle mudel, mille kujundasime ümber nende soovidest lähtuvalt. Kasutasime selle tootmiseks esimest korda uut freespalgi profiili 95mm x 185mm. Pererahvas on oma uue saun-suvilaga rahul ja õnnelikud. Mõnus koht lõõgastuseks ja Soome metsiku looduse nautimiseks.